NOVA
NOVA je simbol elegancije i prestiža u svetu mobilnih kuća.
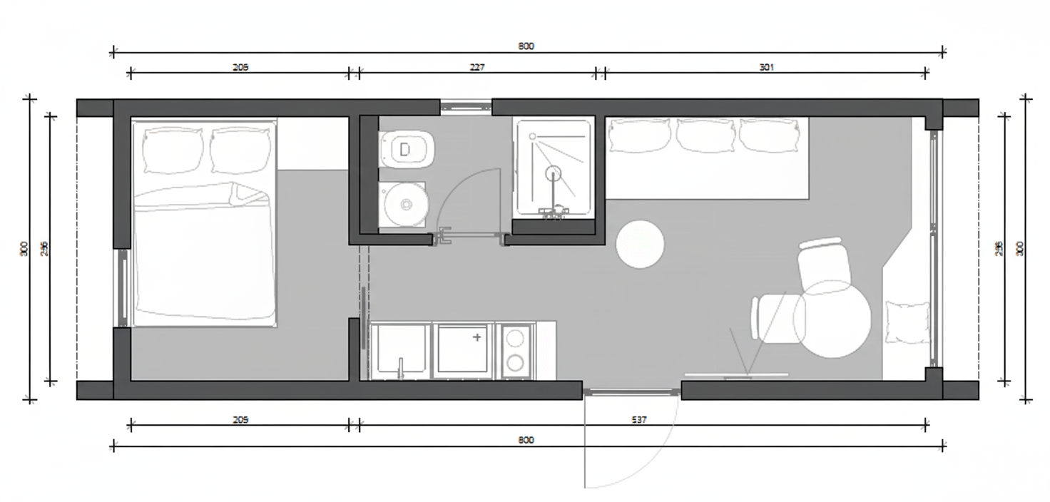
- Kapacitet: 2-4 osobe
- Površina terase: opciono
- UKUPNA površina: 6x3 m / 8x3 m
Dodatne informacije:
Ulaz
- Plakar sa cipelarom
- Visoki garderober
Kuhinja
- Komplet
- Trpezarija
- TV set
- Klupa za sedenje i odlaganje stvari sa dušekom
- Trpezarijski sto sa 2 stolice
Soba za spavanje
- Radni sto
- Krevet sa dušekom
- Plakar iz dva dela po visini
WC
- WC šolja konzolna
- Lavabo sa ormarićem
Tuš kabina
- Komplet
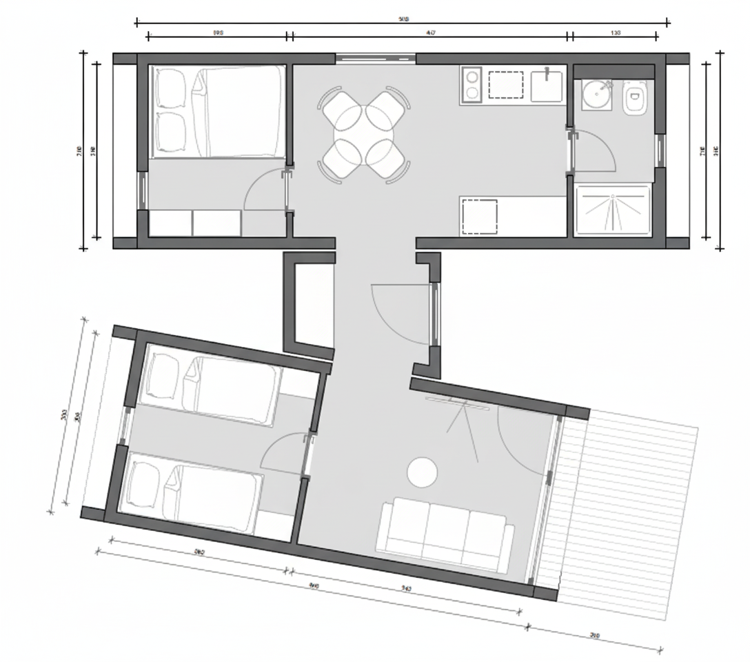
Terasa
- Neto površina 18.81m2
- Baštenska garnitura sa 4 stolice
*Premium dodaci

Jacuzzi

Kamin

Solarna elektrana

Venecijaneri
spoljni i unutrašnji












