ARDE TH1
Serija ARDE stvorena je za one koji prepoznaju lepotu u jednostavnosti i snagu u formi. U njoj se arhitektura i emocija susreću – u preciznim linijama, promišljenim proporcijama i detaljima koji bude osećaj mira, balansa i kontrole.
Svaka jedinica serije ARDE oblikovana je tako da pruži jasan, skladan i funkcionalan prostor, dok estetska čistoća i tehnička preciznost odražavaju filozofiju modernog, tihog luksuza.
To je arhitektura koja ne govori mnogo – ali se oseća.
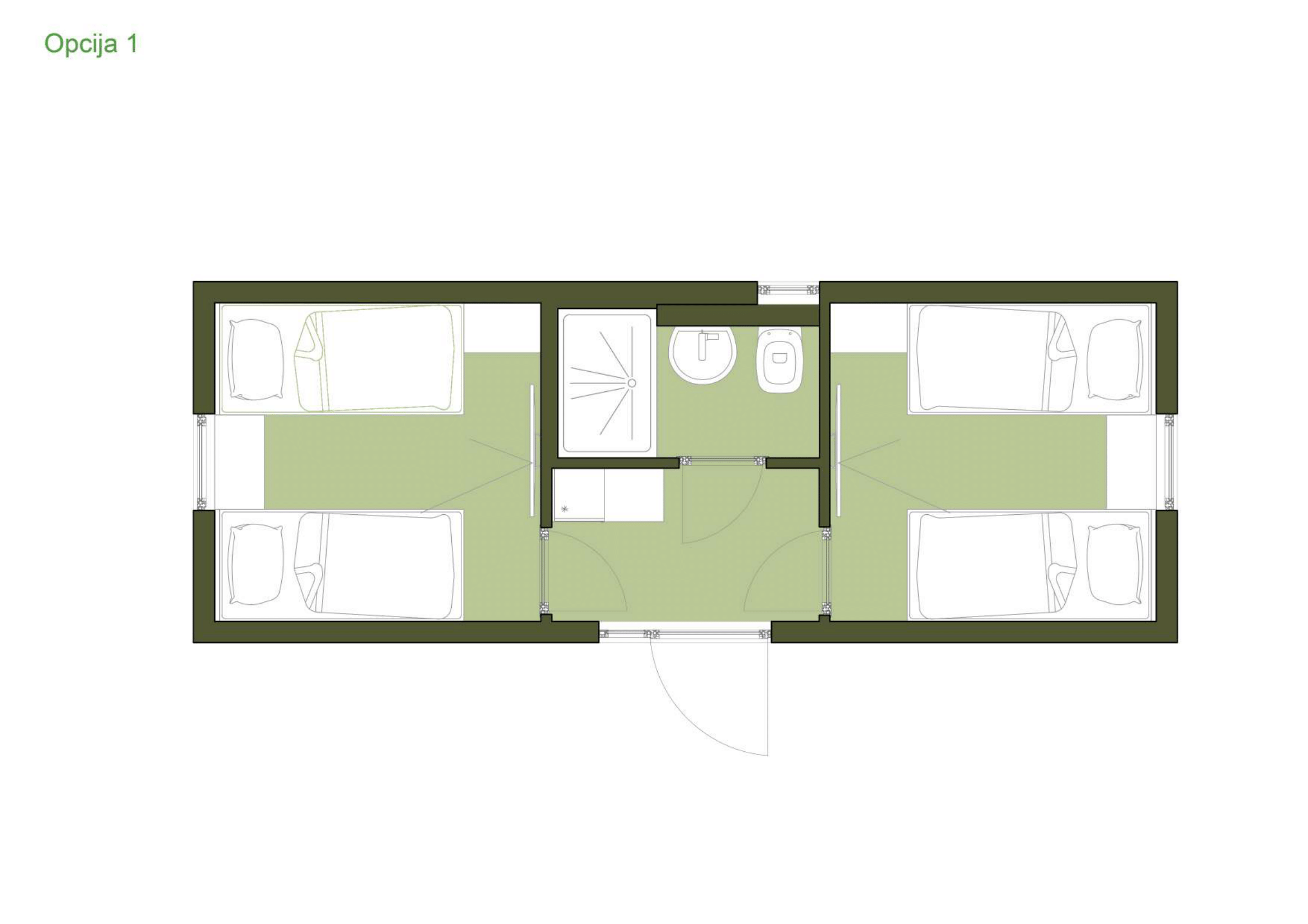
- Kapacitet: 2-4 osobe
- Površina terase: opciono
- UKUPNA površina: 6x3 m / 8x3 m
Dodatne informacije:
EKSTERIJER
Eksterijer serije ARDE zasniva se na minimalističkom izrazu i savršenom spoju tehnologije i dizajna. Svedene linije, geometrijska preciznost i visokokvalitetni materijali čine ove objekte vizuelno upečatljivima, ali nenametljivima.
Svaka površina i ivica oblikovane su s merom i pažnjom, stvarajući savremeni ritam koji arhitekturu pretvara u doživljaj.
Minimalistički dizajn sa naglašenom horizontalom i vertikalom
Visok nivo tehničke preciznosti i stabilnosti konstrukcije
Elegantan kontrast metala, stakla i toplih tekstura drveta
Modularnost i lako uklapanje u urbane i prirodne ambijente
Trajni, izdržljivi i održivi materijali
ENTERIJER
Enterijer serije ARDE osmišljen je tako da u svakom detalju spaja funkcionalnost i estetiku. Prostor odiše smirenošću i profinjenošću – jednostavan, ali bogat u osećaju koji pruža.
Ravne površine, čiste boje i pažljivo odabrani materijali stvaraju atmosferu savremenog minimalizma, dok rasveta i proporcije doprinose osećaju prostranosti i udobnosti.
Otvoreni plan sa čistim, linearnim tokovima kretanja
Diskretno osvetljenje koje naglašava arhitektonske linije
Materijali vrhunskog kvaliteta – metal, drvo, staklo i tekstil
Ergonomija i multifunkcionalni elementi u svakoj zoni
Enterijer koji spaja hladnu preciznost i toplu emociju
Tehničke karakteristike –ARDE
Tip konstrukcije: drvena konstrukcija (100 mm)
Izolacija:
· Zidovi: 100 mm (kamena vuna)
· Krov i pod: 140 mm (kamena vuna)
Vrsta stolarije i stakla:
Aluminijumska stolarija sa termoprekidom
Dvoslojno staklo
Fasada:
Kombinacija lima i drveta
Enterijer:
Zidovi: univer dekor + ROCKO ploča
Pod: vinil ploče
Rasveta: LED paneli i zidne lampe
Instalacije:
Elektroinstalacije sa galanterijom
Vodovodne instalacije sa bojlerom
Kanalizacija
Grejanje i hlađenje: Inverter klima
Kupatilo:
Ormarić sa lavaboom, slavinom i ogledalom
Ugradni vodokotlić sa WC šoljom i daskom
Tuš kada sa tušem i staklenim paravanom
Rok isporuke: 90 – 120 dana
Garancija: 10 godina na konstruktivne elemente
Opcije:
Terasa: otvorena, natkrivena, pergola
Ugradni nameštaj: kuhinja, francuski ležaj, garderoberi, police
Mobilni nameštaj: sofa, sto, stolice, klub sto
Električni uređaji: frižider, grejna ploča, rerna, TV
Dekoracija: garnišne, zavese
Premium dodaci: solarni paneli, đakuzi, kontrola pristupa, podno grejanje
Ulaz
- Plakar sa cipelarom
- Visoki garderober
Kuhinja
- Komplet
- Trpezarija
- TV set
- Klupa za sedenje i odlaganje stvari sa dušekom
- Trpezarijski sto sa 2 stolice
Soba za spavanje
- Radni sto
- Krevet sa dušekom
- Plakar iz dva dela po visini
WC
- WC šolja konzolna
- Lavabo sa ormarićem
Tuš kabina
- Komplet
Terasa
- Neto površina 18.81m2
- Baštenska garnitura sa 4 stolice
*Premium dodaci

Jacuzzi

Kamin

Solarna elektrana

Venecijaneri
spoljni i unutrašnji



